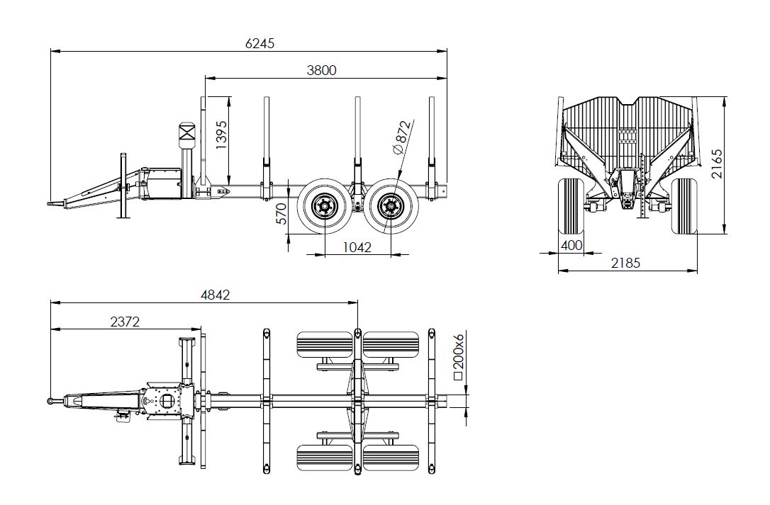
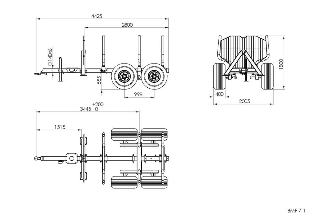
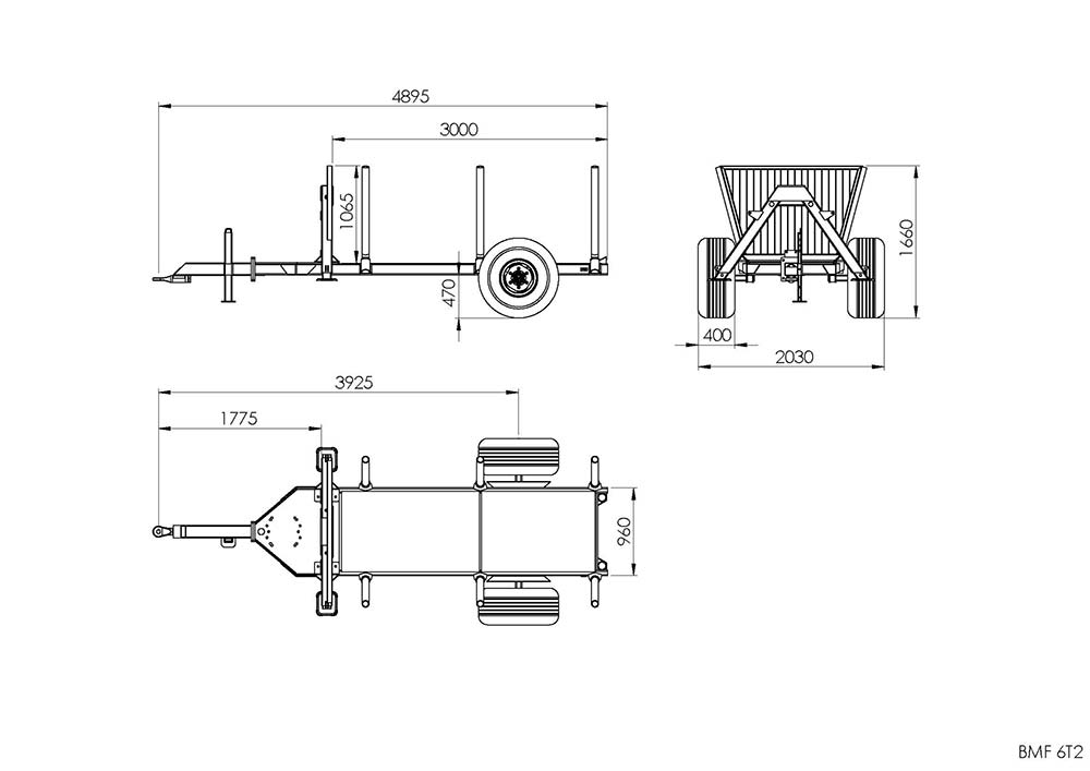
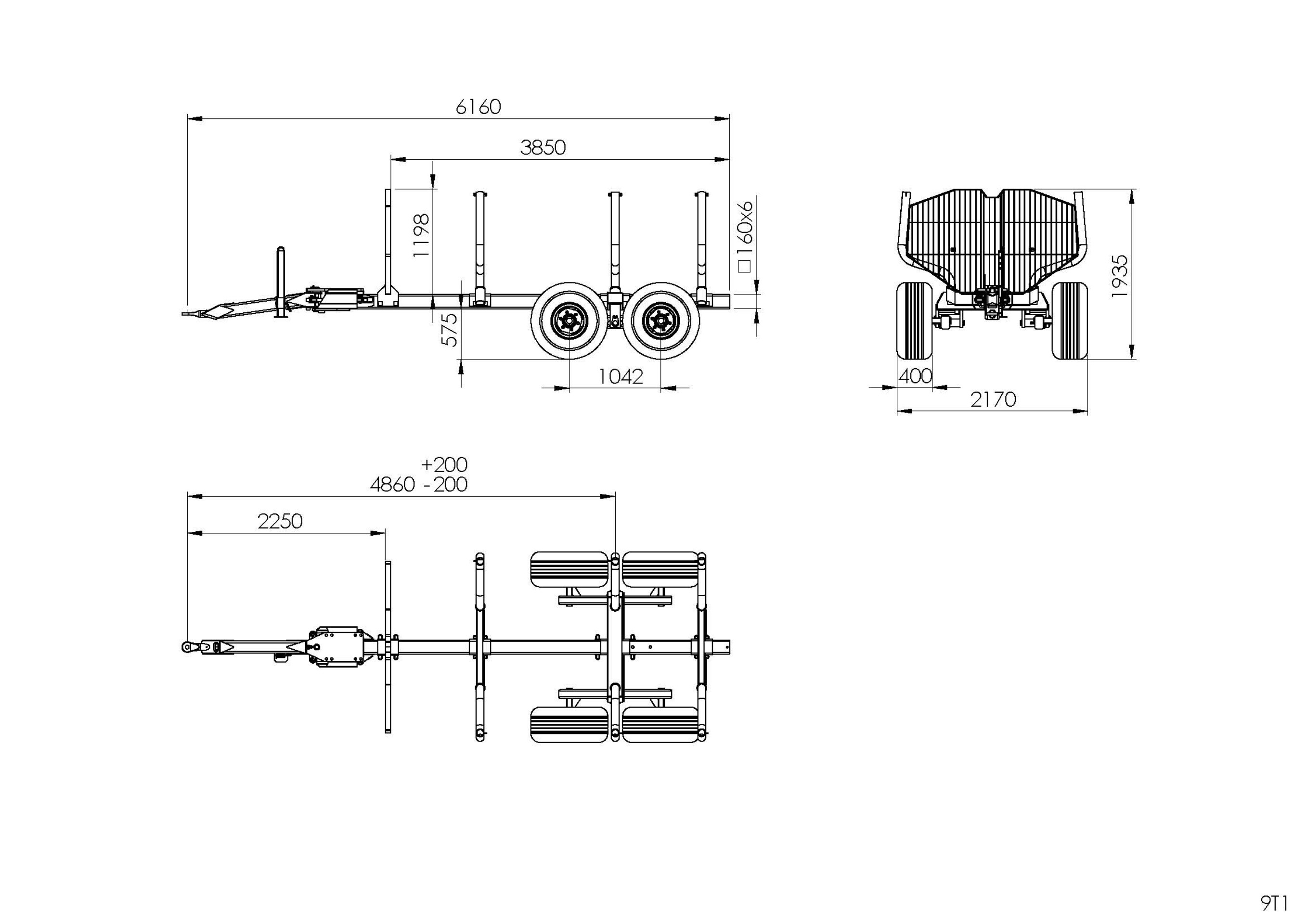
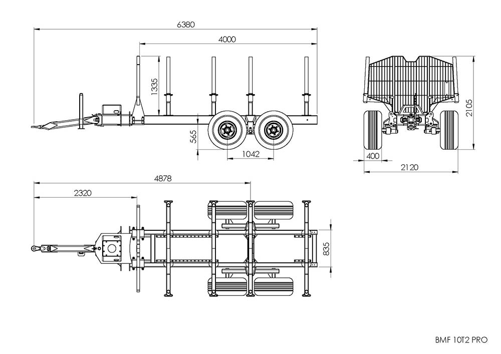
Kétkerekű kiközelítő kocsi 6t terhelésig
Kétkerekű platform kiközelítő kocsi 6 t rakodási kapacitással. Ezt az erdészeti kiközelítő kocsit kifejezetten a magán erdészetekre tervezték. A legmagasabb technikai szinten levő termékek, kiegészítőkkel együtt elérhetők.

